白岡市
白岡市新白岡5丁目
-
ハウス
メーカー 
- 販売価格
-
5,780万円建物価格 3,000万円 / 土地価格 2,780万円
【フラット35】S 金利プランA適合物件
- 交通
-
- 湘南新宿ライン宇須「新白岡」駅より徒歩4分(300m)
- 土地面積
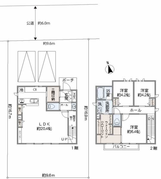
- 162.89m²
- 間取り
- 3LDK+WIC
- 建物面積
- 99.50m²
- 築年月
- 2020年11 月
- 物件PR
- ◆積水ハウス施工のスムストック◆
○JR湘南新宿ライン宇都宮線「新白岡」駅 徒歩約4分!
○令和2年11月築!
○駐車場2台分あり!(車種による)
■瓦一体型太陽光発電システム4.823kw搭載
■積水ハウス株式会社保証:新築時から30年継承可能
■長期優良住宅
■ZEH仕様住宅
■約20.4帖のLDK
■陶版外壁ベルバーン採用
このマークのある物件は、安心R住宅です。
安心R住宅とは、耐震性等国土交通省が定めた要件に適合した既存住宅のことです。
※詳細は、一般社団法人 優良ストック住宅推進協議会までお問合せください。














