春日部市
春日部市豊町3丁目
-
ハウス
メーカー 
- 販売価格
-
2,980万円建物価格 1,180万円 / 土地価格 1,800万円
- 交通
-
- 東武伊勢崎・大師線「春日部」駅 バス10分「防災センター前」停徒歩3分
- 東武鉄道野田線「春日部」駅 バス10分「防災センター前」停徒歩3分
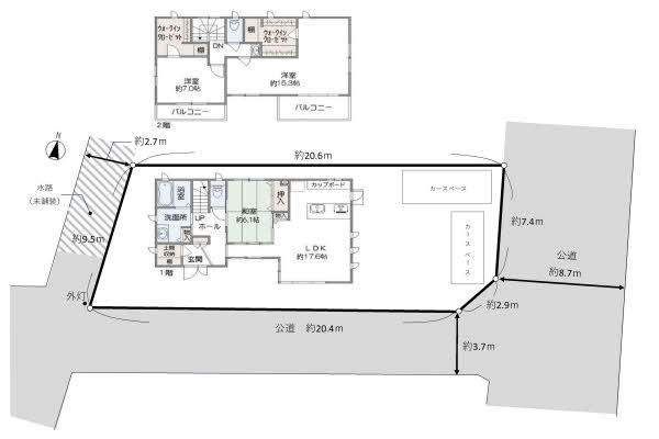
- 土地面積
- 160.78m²
- 間取り
- 2LDK+S(納戸)+WIC
- 建物面積
- 141.75m²
- 築年月
- 2003年12 月
- 物件PR
【リフォーム工事内容(2022年11月)】
◆2階外壁塗装
(軒裏・軒先・笠木・金物含む)
※1階陶板のため塗装不要
◆1・2階目地交換
\スムストックとは?/
大手ハウスメーカー10社で共通の基準を満たすものを「スムストック」と認定
①「新耐震基準」レベルの耐震性保持
②スムストック住宅販売士が明確な基準で適正評価
③新築時~現在に至るまでの住宅履歴(… 続きを見る
このマークのある物件は、安心R住宅です。
安心R住宅とは、耐震性等国土交通省が定めた要件に適合した既存住宅のことです。
※詳細は、一般社団法人 優良ストック住宅推進協議会までお問合せください。























